Zwei moderne Bürogebäude! Top-Lage in der Bocholter Innenstadt!
Südwall 26 und Theodor-Heuss-Ring 26, 46397 Bocholt
Repräsentative Bürogebäude - Innenstadtlage von Bocholt!
Objektart
Adresse
Objektdaten
Informationen
Ausstattung
Details
Repräsentativ - modern - top gepflegt! Zum Verkauf stehen zwei voll vermietete Bürogebäude! Interessante Kapitalanlage in der Innenstadt von Bocholt!
* ca. 1.484 m² Grundstück
* ca. 1.315 m² Nutzfläche insgesamt
* Bürogebäude - Theodor-Heusss-Ring 4 mit 972 m² Nutzfläche - Umbau und Erweiterung 2001
* Bürogebäude - Südwall 26 mit 343 m² Nutzfläche - Kernsanierung 2003
* 22 PKW-Stellplätze
* weitere öffentliche Stellplätze sind in unmittelbarer Nähe
* repräsentative, moderne Räumlichkeiten
* kein Renovierungsstau - Top Zustand
* Balkon im Objekt Südwall 26, Bocholt
* insgesamt 13 WCs
* Luft-Wärmepumpe zum heizen und kühlen
* beide Objekte sind vollständig vermietet
* aktuelle jährliche Nettomiete 199.764,-- EUR
* keine weitere Käufer-Provision
SONSTIGES: Das Gebäude "Theodor-Heuss-Ring 4" verfügt über einen Doppelboden der zusätzliche Isolation und Schalldämmung bietet. Rohre, Strom-, Daten- und Kommunikationskabel können unsichtbar unter dem Boden verlegt werden, was zu einer aufgeräumten und sicheren Umgebung beiträgt. Lüftungsanlage mit Wärmerückgewinnung. Beide Objekte sind mit einem BUS-System ausgestattet. Dieses ermöglicht die zentrale, vernetzte Steuerung und Kommunikation zwischen unterschiedlichen Komponenten. Die Gebäude sind vollständig vermietet. Aktuelle jährliche Nettomiete 199.764,-- EUR. Kein Renovierungsstau, beide Immobilien befinden sich in einem Top Zustand.
Erhalten Sie exklusiven Zugang zu Ihrem persönlichen VIDEO-LINK und erkunden Sie die Räumlichkeiten Ihrer Traumimmobilie bereits im Voraus mit einer VIDEO-BESICHTIGUNG.
Weitere Details besprechen wir gerne in einem persönlichen Gespräch mit Ihnen.
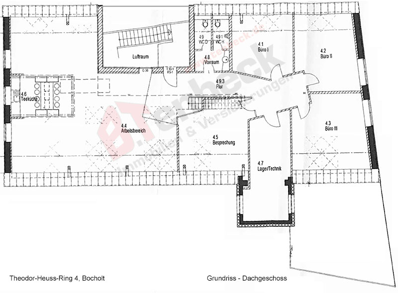
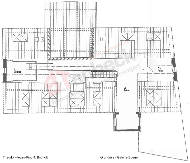
Theodor-Heuss-Ring 4, 46397 Bocholt - mit 972 m² Nutzfläche (verteilt sich wie folgt):
Erdgeschoss links: 195 m²
Erdgeschoss rechts: 121 m²
Obergeschoss: 333 m²
Dachgeschoss mit Galerie 322 m²
Südwall 26, 46397 Bocholt - mit 343 m² Nutzfläche (verteilt sich wie folgt):
Souterrain: ca. 46 m²
Erdgeschoss: 110 m²
Obergeschoss: 111 m²
Dachgeschoss: 76 m²
zusätzliche Abstellfläche befindet sich im Keller
FENSTER: Alurahmen mit Wärmeschutzverglasung und Raffstoreanlagen
HEIZUNG: Luft-Wärmepumpe zum heizen und kühlen
Verbrauchsausweis, Strom, Energieverbrauch - 63,4 kWh/(m²a)
PKW: 22 PKW-Stellplätze, weitere öffentliche Stellplätze sind in unmittelbarer Nähe
Die Immobilie befindet sich in stadtnaher Lage von Bocholt.
Entfernung zum historischem Rathaus - Innenstadt von Bocholt:
Auto: 6 min / Fahrrad: 2 min / Fußläufig: 6 min
Die Stadt Bocholt liegt im westlichen Münsterland, unweit der niederländischen Grenze, im Nordwesten von Nordrhein-Westfalen und ist mit ca. 72.000 Einwohnern die größte Stadt des Kreises Borken.
Als Einkaufsstadt ist Bocholt weit über seine Stadtgrenzen hinaus beliebt. Die attraktive Innenstadt mit der 800jährigen Geschichte lädt mit ihren Einkaufsstraßen sowie den Centern "Shopping-Arkaden" und "Neutor" zu Shoppingtouren ein. Inhabergeführte Geschäfte und Boutiquen sind ebenso vertreten wie alle großen Marken. Der Wochenmarkt und der Abendmarkt vor der wunderschönen Kulisse des Historischen Rathauses sowie der Krammarkt sind Anziehungspunkte in der Innenstadt.
Bocholt überzeugt durch die vielfältigen kulturellen Highlights und das abwechslungsreiche Freizeitangebot: die traditionelle Herbstkirmes, verkaufsoffene Sonntage, Konzertveranstaltungen, Theater- und Kleinkunstbühnenbesuche, Kinodrom, Aasee mit Sandstrand und Bademöglichkeit, Inselbad Bahia mit seiner mediterran-maurischen Saunalandschaft, Textilmuseum, und, und, und ... Das alles macht Bocholt zur l(i)ebenswerten Stadt.
Aufgrund der idealen Lage zwischen den Niederlanden und dem Niederrhein hat sich Bocholt auch überregional einen Namen als "Fahrradstadt" gemacht. Ausgeschilderte idyllische Radwege laden zu reizvollen Touren rund um die Stadt an der Aa und in das Münsterland oder den Achterhoek ein.
Mit dem Auto ist Bocholt am schnellsten über die A3 bzw. die A31 mit Weiterfahrt auf der B67 erreichbar.
Der Regionalzug "Der Bocholter" pendelt im Stundentakt zwischen Bocholt und Wesel. Dort besteht dann Anschluss ins Ruhrgebiet und Rheinland oder Richtung Niederlande. Mit den Regionalbussen ist das restliche Münsterland und die Rhein-Ruhr-Region erreichbar. Die Flughäfen Düsseldorf (80 km), Weeze (55 km) und Münster/Osnabrück (100 km) liegen in ca. 60 Minuten Entfernung von Bocholt.
Vom I-Dötzchen über die weiterführenden Schulen bis zum Studium an der Westfälischen Hochschule: Bocholt ist ein Bildungsstandort mit großer Vielfalt. Neben den insgesamt 29 Kindertageseinrichtungen hat Bocholt 14 Grundschulstandorte, 2 Förderschulen, 4 Hauptschulen, 3 Realschulen, 4 Gymnasien, 1 Gesamtschule sowie 4 Berufs- und Weiterbildungskollege. Ein Studium an der Westfälischen Hochschule am Standort Bocholt ist ebenfalls möglich.
Ebenso wirtschaftlich bildet Bocholt die Metropole der Region mit internationalen Konzernbereichen und innovativen mittelständischen, oft inhabergeführten Unternehmen. Zukunftsorientierte Infrastruktur und zukunftsweisende Gewerbegebiete sind hierfür ebenso Zeichen wie auch das Technologie- und Innovationszentrum mit Anbindung an die Westfälische Hochschule vor Ort und der mit 300 ha größte erschlossene Industriepark Nordrhein-Westfalens.
Nachdem Sie uns eine Kontaktanfrage gestellt haben, erhalten Sie von uns automatisch eine E-Mail. Damit Sie Ihr "persönliches Immobilienangebot" als Exposé erhalten, klicken Sie hierzu einfach auf den Link "HIER KLICKEN FÜR EXPOSE".
Bitte überprüfen Sie auch Ihren SPAM Ordner, wenn Sie ein Exposé anfordern. Danke!
Für Rückfragen oder um einen Termin zu vereinbaren nutzen Sie bitte das Kontaktformular.
Diese Immobilie wird so angeboten, dass kein Maklervertrag mit dem Kaufinteressenten abgeschlossen wird. Die Vergütung bei der Vermittlung dieser Immobilie trägt ausschließlich der Verkäufer. Der Immobilienmakler ist der alleinige Interessenvertreter des Verkäufers und vereinbart mit dem Kaufinteressenten weder eine Vergütung, noch wird ein Maklervertrag abgeschlossen. Auch durch die Vereinbarung eines Besichtigungstermins oder die Übermittlung von Unterlagen sowie die Entgegennahme eines Kaufpreisangebots kommt kein Maklervertrag mit dem Kaufinteressenten zustande.
Wir freuen uns auf Ihren Anruf! Tel.-Nr.: 02871/23 98 70.
Im Interesse unserer Auftraggeber, behalten wir uns vor, nur E-Mail-Anfragen mit vollständiger Anschrift und Telefonnummer zu bearbeiten. Wir danken für Ihr Verständnis.
Zögern Sie nicht, uns zu kontaktieren - wir freuen uns auf Ihre Anfrage!
Anmerkung:
Alle Angaben in diesem Exposé stammen vom Verkäufer. Wir übernehmen deshalb keine Haftung für diese Angaben. Irrtümer und Zwischenverkauf vorbehalten. Der Verkäufer behält sich vor, bei mehreren Kaufinteressenten nach Gebot zu verkaufen.
Ansprechpartner
Telefax: +49 2871 2398777
immobilien@tenbeck.de
Energieausweis (Verbrauchsausweis)
63,40 kWh / (m²*a) Energieverbrauchskennwert
63,40 kWh / (m²*a) Energieverbrauchskennwert
63,40 kWh / (m²*a) Energieverbrauchskennwert
Weitere Informationen
| Befeuerung | Elektro |
| Energieausweis gültig bis | 02.09.2035 |
| Energieausweis Jahrgang | ab dem 1.5.2014 |
| Energieausweis Stromwert | 0,9 kWh / (m²*a) |
| Energieausweis Wärmewert | 63,4 kWh / (m²*a) |
| Energieausweis Baujahr | 1954 |
Ich bin damit einverstanden, dass mir Karten von Google angezeigt werden. Es gelten die Datenschutzbedingungen von Google (https://policies.google.com/privacy).
Ich bin einverstanden